1室

200万/套

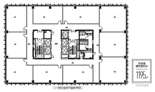
在售 全明格局景观落地窗
关注

名称

办公

层高

4米

地址

江苏省南京市江宁区玉兰路98号南京南站

楼栋

暂无资料

4008-515-515
免费致电,获取更多开盘优惠信息
电话咨询

户型评测

我要评分

8

评测推荐:优秀

空间布局

8

采光通风

8

房屋功能

8

户型评分

空间布局

8

采光通风

8

房屋功能

8

立即提交

户型解读

优势
【布局】 观景落地窗

位置及周边配套

查看全部

位置

江宁-岔路口 江苏省南京市江宁区玉兰路98号南京南站

未找到相关信息
未找到相关信息
未找到相关信息
未找到相关信息
未找到相关信息
未找到相关信息

猜你喜欢

电话咨询