1室1厅1卫

99万/套

在售 全明格局
关注

名称

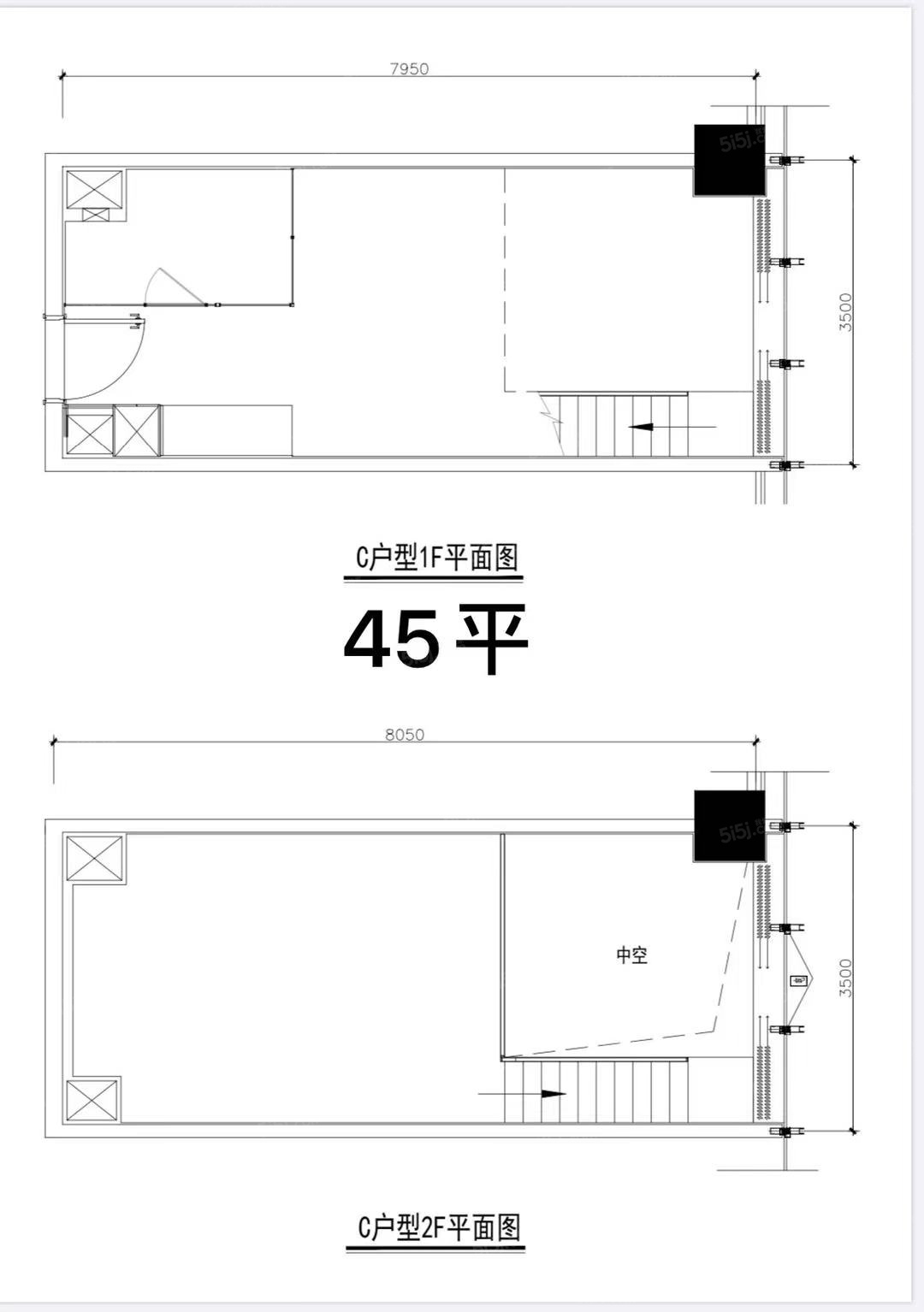
45方

层高

4.5米

地址

杭州市临平区望梅高架路和迎宾路交叉口西南侧

楼栋

1

所属楼盘

中顺大厦

4008896762转0256
免费致电,获取更多开盘优惠信息
电话咨询

户型评测

我要评分

8

评测推荐:优秀

空间布局

8

采光通风

8

房屋功能

8

户型评分

空间布局

8

采光通风

8

房屋功能

8

立即提交

户型解读

优势
【布局】 户型方正,格局好

位置及周边配套

查看全部

位置

临平-临平 杭州市临平区望梅高架路和迎宾路交叉口西南侧

未找到相关信息
未找到相关信息
未找到相关信息
未找到相关信息
未找到相关信息
未找到相关信息

本楼盘其他户型推荐

猜你喜欢

楼盘卖点|三进院落8幢围合 320-490㎡纯低密宽景隐形豪宅 总价仅900万起 精装交付即将现房

楼盘卖点|精装现房,自带会所,同协路站地铁站350米,龙湖天街800米

电话咨询 在线咨询