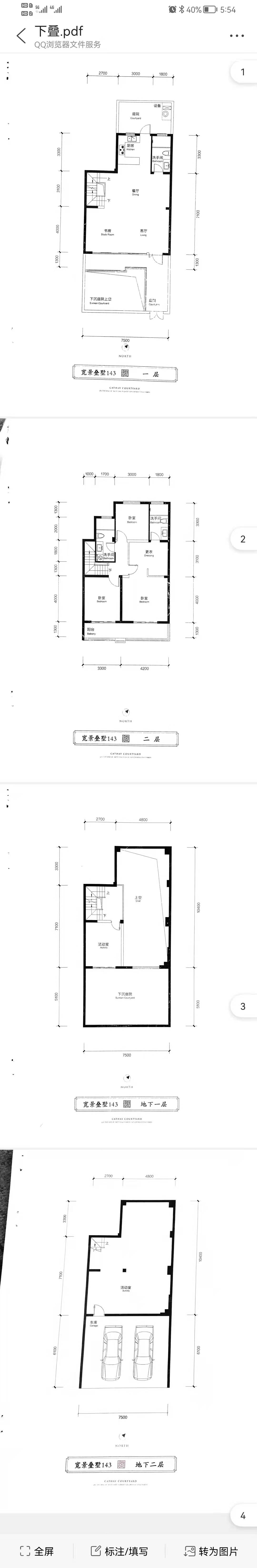
5室2厅3卫

450万/套

售罄 全明格局户型方正南北通透
关注

名称

B下叠

层高

3米

地址

富阳野风乐多房地产开发有限公司

楼栋

90

所属楼盘

大城小院

4008891327转0657
免费致电,获取更多开盘优惠信息
电话咨询

户型评测

我要评分

8

评测推荐:优秀

空间布局

8

采光通风

8

房屋功能

8

户型评分

空间布局

8

采光通风

8

房屋功能

8

立即提交

户型解读

优势
【布局】 户型方正,格局好

位置及周边配套

查看全部

位置

富阳区-银湖 富阳野风乐多房地产开发有限公司

未找到相关信息
未找到相关信息
未找到相关信息
未找到相关信息
未找到相关信息
未找到相关信息

本楼盘其他户型推荐

猜你喜欢

楼盘卖点|一念湖山入院来,近青山湖畔,奢享约10平方公里大美秀水、约万亩森林公园,近距约42公里的环湖步道。地铁口800米

楼盘卖点|环境优美,地面3层,地下1层可以隔断成2层

楼盘卖点|1、新宋风格低密度墅式住宅2、低容积率、区域内独此宋韵3、地铁+高铁双铁联运4、五大商业综合体环伺

电话咨询 在线咨询